Ogrody zimowe
Ogrody zimowe
Ogrody zimowe są specjalnością Aluperfekt Sp. z o.o. Charakteryzują się wysoką jakością, trwałością i estetyką. W naszej pracy kierujemy się własnym doświadczeniem i wiedzą oraz dbamy o satysfakcję klientów – spełniamy ich indywidualne potrzeby i oczekiwania w zakresie kształtu i realizacji ogrodu zimowego.
Ogrody zimowe zwiększają Państwa możliwości kontaktu z przyrodą, można z nich korzystać przez cały rok – niezależnie od pory roku i pogody. Oferowana przez Firmę Aluperfekt konstrukcja aluminiowa jest stabilna i trwała, a nasi doradcy i projektanci dokładają wszelkich starań, by dobrze pasowała do architektury budynku, tworząc harmonijną całość. Naszym priorytetem jest staranne zaprojektowanie oraz wykonanie konstrukcji ogrodu zimowego, tak by służył on przez długi czas.
Ogród zimowy to pomieszczenie wypełnione słońcem i roślinnością oraz specyficznym klimatem. Można w nim urządzić pokój umożliwiający doskonały wypoczynek i tym samym powiększyć powierzchnię mieszkalną domu. Ogrody zimowe mogą spełniać zróżnicowane funkcje, np. oranżerii do uprawy ciepłolubnych gatunków roślin, czy salonu wypełnionego światłem i widokiem na ogród.
Przegląd typów

Typ 001

typ 002

typ 003

typ 004

Typ 005

typ 006

typ 007

typ 008

Typ 009

typ 010

typ 011

typ 012

typ 013

typ 014

typ 015

typ 016

typ 017
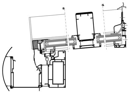
Rysunki przekrojowe
